High Pressure CO2 System
Description
High Pressure CO2 System
- CO2 system is a colorless, dry and inert gas
- Vaporizes after extinguishing a fire and leaves no residue
- Non-conductive to electricity and electronic equipment
- Cost effective: Readily available standard gas
- The extinguishing process is achieved by displacement of oxygen so that atmosphere is incapable of supporting combustion
- Typical applications: electrical and engine rooms, flammable liquid storages…
- CO2 can be used as total flooding application or local application
- The quantity of CO2 gas is calculated from the area/volume of the hazard and the duration of the discharge
- NFPA12 recommends 50% concentration of CO2 gas, calculated using a concentration of 1.33kg/m3
- Flow calculation to be provided with each system to ensure correct pipe sizing and discharge time.
- As per NFPA 12 Standard
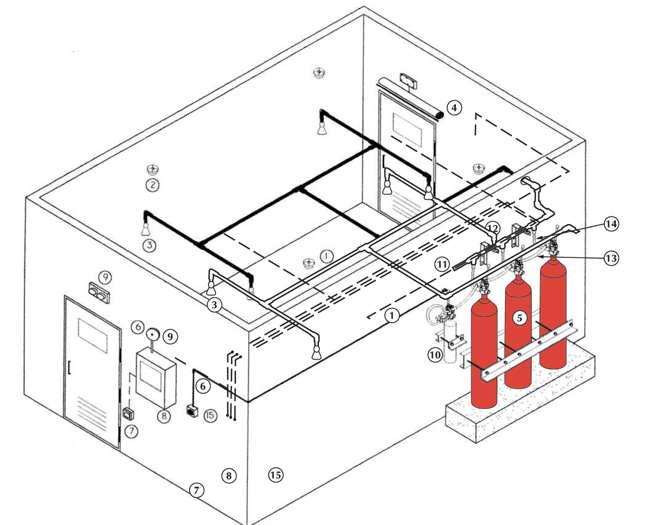
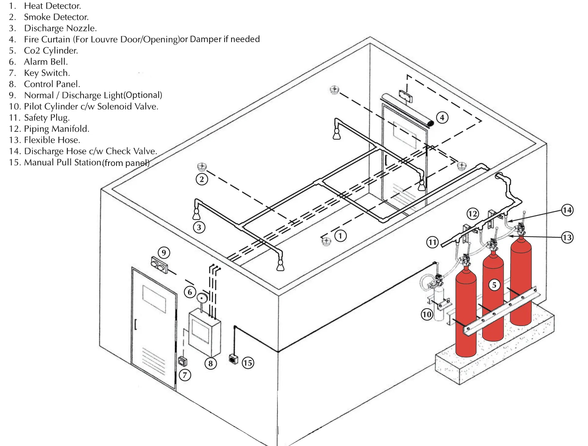
A CO2 system consists of one or more cylinders connected to a distribution pipe and discharge nozzles
Benefits of CO2 Fire Suppression
CO2 fire suppression systems, also known as carbon dioxide fire suppression systems, are widely used in industrial and commercial settings for their effectiveness in quickly extinguishing fires. Here are some of the benefits of CO2 fire suppression systems:
- Rapid Fire Suppression: CO2 is a highly effective extinguishing agent because it displaces oxygen, suffocating the fire. It works quickly to suppress flames, preventing the fire from spreading and causing further damage.
- Non-Conductive and Non-Corrosive: CO2 is non-conductive, making it safe to use around electrical equipment without causing damage. It’s also non-corrosive, which means it won’t harm sensitive equipment or materials.
- Minimal Residue: Unlike some other fire suppression agents like water or foam, CO2 leaves behind little to no residue after deployment. This means less cleanup and minimal damage to equipment or property.
- Suitable for Confined Spaces: CO2 is often used in areas where other agents may not be suitable, such as confined spaces like engine rooms, vaults, or electrical substations.
- Effective on Class B and C Fires: CO2 is effective on fires involving flammable liquids (Class B) and electrical fires (Class C). This versatility makes it a preferred choice in many industrial settings where these types of fires are common.
- Environmentally Friendly: CO2 is a naturally occurring gas that does not contribute to ozone depletion or leave behind harmful residues. This makes it an environmentally friendly choice for fire suppression.
- Automated Activation: CO2 fire suppression systems can be designed to activate automatically in response to fire detection systems, providing rapid response even when personnel are not present.
- Cost-Effective: While installation costs for CO2 fire suppression systems can be significant, they are often more cost-effective in the long run due to minimal maintenance requirements and low recharge costs compared to other systems.
Only logged in customers who have purchased this product may leave a review.










Reviews
There are no reviews yet.